2026-05-03
财位:想要生旺家宅财气,那么
2026-05-02
貔貅,作为一种传统的祥瑞之物,
2026-05-01
在日常生活中,我们时常能邂逅万
2026-04-30
很多人戴首饰只看款式和价格,却
2026-05-04
立夏,是夏季的第一个节气,也象
2026-05-04
作为一个AI语言模型,风水并无
2026-05-02
在居家生活中,您是否曾为莫名的
2026-04-30
在5月份里面有两个节气,一个是
2026-05-04
大家好,今天我们来聊一个有趣的
2026-05-03
1、“财多身弱,富屋贫人”:
2026-05-03
每个人从出生以来就有了自己的八
2026-05-02
七杀在命理学中有着非常重要的作
2026-05-03
许多人倾向利用麻将作为一种消遣
2026-04-30
2026年,流年为丙午年,天干
2026-04-29
许多人喜欢通过打麻将来消磨时间
2026-04-28
在中国传统文化中,财神被尊为掌
2026-05-04
在办公室的空间里,除了必备的办
2026-05-03
“藏风聚气”就是把吉气藏住
2026-05-03
卦位坤,代表老母,属土,可
2026-05-03
受环境的作用和影响,人的精、气
广东客户新房风水装修设计完成,风水装修设计要点效说明
铁笔居士
广东佛山客户的一套新套房,在经过半个月时间设计,已经完工交付装修,那么在装修设计方面有那些亮点呢?
首先来说,我们这里是风水装修设计,那么就是肯定是结合起风水元素来进行的,所有的装修设计,都是围绕风水要求来进行。当然,风水主要设计人是铁笔居士,具有三十年风水大师经验,为上千客户做过风水调理和化解、风水布局,所以在风水处理方面,这点是不需要担心,因为我们是专业的。

那么在这套房中,风水上有几处在装修时候就进行了处理。
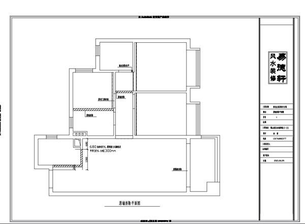
一、这套房子在原有结构上,厨房的门开方向不合理,灶位也是无法安放,通过改变门向,这样也可以风水要求把灶位安放好。灶位在风水来说,是极为重要一点,主管健康和财运,一家和睦,我们家居中,内六事第二点就是灶位,所以安灶位是风水师必要点好的一个地方。
二、大门直向是阳台,这点很多房子是这样结构,我们在通过中间设计出隔栏,有效阻止直通煞,这样也就破解了风水方面不聚财的影响,有效起到气场回旋。通过设计后,这样不影响到全屋整体美观,也有效起到风水作用,这就是风水装修最大的作用。大门是主管风水纳气,有如人的嘴巴,大吃进食物后,不能直通出去,直通就不会产生营养,这也就是不聚财的原理。
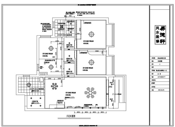
三、全屋中间小房间,原有结构是杂物间,我们通过设计打通,并且将这个地方连结起来,形成一个大房间,并附带了杂物柜,这样收纳方面没有问题,并且重要的是把中宫的杂物间改成套间,这样就不会形成房子中宫是杂物间。风水上来说,中宫主管这个房子的四面八方力量,中宫所在物事,会影响到这个房子的风水力量,假如按原有的杂物间,这套房子就会成为杂物房,对于住户来说,就会成为一事无成,杂乱无章,所以风水引导力量,就必须要改变,这样当人进住后,才能起到兴旺发达。
四、厕所改造,这套房子的厕所在进入走廊的中间,也就是小房间边上,这样一个厕所,刚好是在房子中宫,这就叫厕所在中宫,无吉定有凶,厕所入中是风水大忌,住后人健康大不利,也是破财招灾的地方,所以这个中间厕所进行改造,改成一排衣柜,这样又是能起到收纳空间,也加小房间结合起来,形成一个整体,改变厕所在中宫的不利局面。
而将主卧室的厕所分开来,形成另外一个厕所,变成走廊尽头地方是主卧室和厕所分开,这样虽然厕所略为小点,但也是不影响,并且用洗手台阻开,这样厕所不和主卧室连结起来,也不影响主卧室气场,这也是最为有利风水的格局。
厕所是影响风水最为严重的地方,对于人在入住后健康和财运,也是有着极大影响,在中国传统来说,主房结构内,是没有厕所存在,由于现时代商品结构较小,又是紧密型,并且每一户都是独立空间,所以现在是将厕所引入室内,但这样是方便了,但是在使用时间长了后,厕所就会产生煞气,这煞气对人的健康和生活将会产生严重影响,所以在装修设计上,对于厕所的设计也是一个重点。
最好,在风水上,通过儿童房,客厅的风水布局,点出财位和文昌位,夫妻房内夫妻和睦位,再通过软装来点缀,这样一个房屋的风水气场良好,也就能让住户在住进后,家庭和睦,事业财运发达,一家大小平安顺利。
至于现在的床位这些,一是根据房型来安放,二是通过气场调节,或者是在装修时间,通过吉祥物铺放地下,这样在装修完成后,又看不出来有什么故意风水迹象存在,又能起到必要的化解和调理,这也就是风水装修设计的重要性。
当然,风水摆件是需要明显摆放,那些可以说是相当于居室中的软装体现了。
总之来说,在装修中,将风水结合起来,这是十分重要,也是最好的选择,不管你相不相信风水,但风水是真实存在的,在三十来年来,看到因为风水影响而造成家破人亡,破产和一生倒霉的事太多,最后,我还是要说一下,不要为了省点儿设计钱,很多所谓的号称免费设计,是包含在装修费中了,而现在所谓的设计师,根本就不懂风水,只是追求视觉化,这和我们所追的旺宅、吉宅是相距很远的。
下面是我们装修设计的图纸,我们不只是针对风水,是根据风水结合起来专业装修设计,从风水效果到视觉效果再到风格效果,利用空间,合理布置,装修所必须要的图纸,说明和材质运用一系列内容,我们都将提供所有内容服务。
特别是对一些装修小白们,为了你不花冤枉钱,不被装修队坑钱,我们会和你如何在装修中省出一大笔钱来,如何选择最佳材料来装修最为和算等等。
易德轩风水装修设计,是一个系列过程,我们提供效果图和施工图,并且全程指导装修,直不对劲装修完成,一对一为你的家居工程提供专业指导。
下面是部分效果图和施工图,我们也提供有VR全景效果供你直观效果,直到修改到满意为止。








2019-12-07
数字在我们生活中的使用越来越频繁,例如我们的电话号码,手机
2020-04-05
文昌符是我们民间用来加强孩子读书所用的,文昌符也就是向文昌帝
2019-12-08
23数字在易经预测体系里属于大吉之数, 23数暗示为:壮丽。
2019-10-06
童男、童女,在神界又分为端茶倒水、扫地浇花、牵牛牵马、贴身跟
2019-12-09
每个人的吉祥数字不同,个人喜好也不同,数字30冥冥中从来不畏
2025-04-05
搬家之中有许多的风俗讲究,那么公司搬家和我们日常的搬家有哪些
2025-04-05
人生命运不同,运势自然也不尽相同,有些人早年能发达,有些人中
2025-04-05
话说除了热爱整理、有收纳习惯的朋友,应该多得是习惯东西用了随
2025-04-05
色彩搭配在风水应用中也十分重要。黄色在风水学上具有旺财的功效
2025-04-05
如今的现代城市,高楼大厦鳞次栉比,房屋多是钢筋水泥的 “杰作
2022-03-01
首先在前面说了,所谓火烧天门,那么最为主要的就是火来克金这个
2020-06-25
,我们供奉佛菩萨,上香,礼拜,祈求好运,这只是我们信佛,学佛