2026-01-13
桃印,也叫“桃印符”,是用
2026-01-10
在家居布置中,电视柜的摆件往
2026-01-10
在当今时代,经济犹如一艘不断加
2026-01-09
古铜钱是指古时候流通的货币,风
2026-01-22
在阳宅布局中,特定的物体都有
2026-01-22
丙午年,天干“丙”为阳火,如烈
2026-01-20
在人生的旅途中,我们或许会遇到
2026-01-19
大家都知道,在生活中,剪刀属于
2026-01-22
用哲学的观点看,就是要学会抓主
2026-01-22
子属膀胱水道耳, 丑为胞肚
2026-01-22
交通运输、物流航运、贸易、旅游
2026-01-21
女命月支和日支相冲,因为月支是
2026-01-22
十二生肖,又叫十二属相,是与十
2026-01-21
钱财乃是养命之源,没有了金钱财
2026-01-20
十二生肖运势岁月不居,时节如流
2026-01-20
节气是时空流转的重要节点,今日
2026-01-22
最近接到若干朋友询问养鱼问题,
2026-01-22
作为人类的好朋友,养猫狗的历史
2026-01-21
城市的道路二面有房,人来人往,
2026-01-21
2026农历新年快到,每个新年
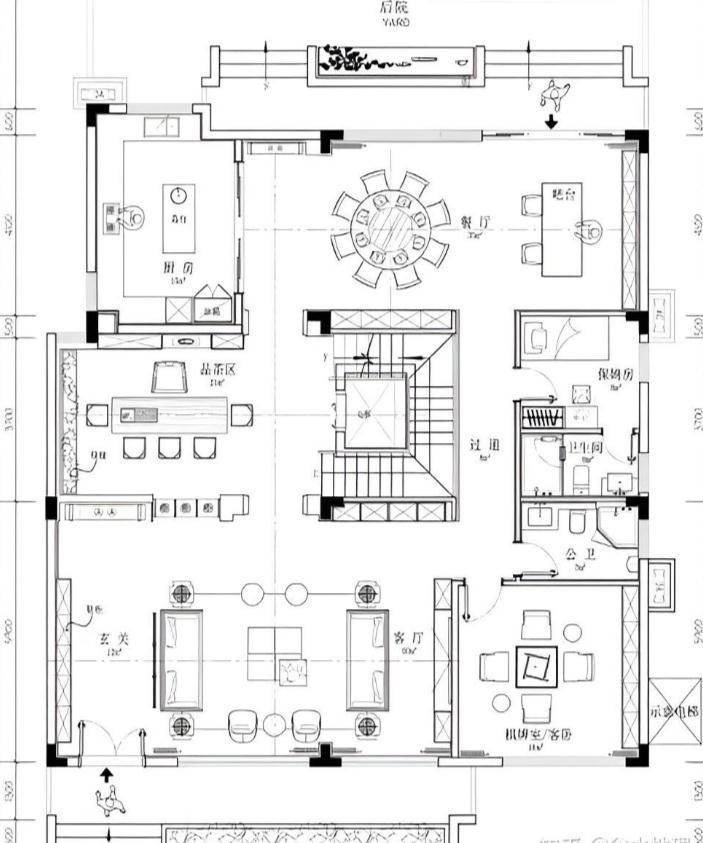
从实例说明如何快速鉴定阳宅风水
有经验的师父都知道,在鉴定已经建好的阳宅时,是不会去看来龙的,特别是城市中的楼房,根本没有条件去测量来龙。甚至现在农村的阳宅,也很少有条件能测来龙。曾经听说过一个笑话,说南方有一位风水先生,为了测阳宅的来龙,竟然爬到房顶上下罗盘,这可以说其确实不懂风水。测量龙来于何方,需要分段去测,而不是只在阳宅处测量某一点就行。正所谓经文所讲“又从分水脉脊处,便把罗经照出路,节节同行过峡真,前去必定有好处”。在阳宅处只测量某一点,很有可能测量的是砂手,而不是真正的来龙入首处。
阳宅风水,因为与阴宅有较大差别,其应验速,用事不如阴宅长久,所以来龙并非是阳宅的必要条件。如果说某一大佬级人物,确定要做一完全符合风水法则的阳宅,而且其用地条件也非常具备要求,那就要考虑来龙问题。
阳宅不考虑来龙也能很好地判断其是吉是凶。判断某一处宅子的好坏,只要抓住几个关键点,就能快速判断出其好与坏,会应验什么事情。
阳宅风水的关键点都有哪些呢?有坐向,建筑时间,建筑形状,外部视力所及范围内的峦头,内部格局及布局。楼房还要看楼层,位置,电梯,步梯等。
我们来看一个实例(阳宅为了隐私,非必要,一般不拍摄阳宅内部照片)。
此宅2020年建成,三层,坐北朝南,具体坐向是坐癸向丁,带有一层地下室,是小区内从南边数第二排的独立别墅,左前方三十多米处有一过街地下通道的出入口,宅后面有独立花园,在房内可以看到前、后面都有两栋高楼之间形成的空隙。
此住宅的外部环境,地下通道的出入口及前后面两楼之间的空隙,是两处风水上的关键点,从这两点可以判断出此宅大致情况,一是会有感情婚姻方面的问题,严重时会离婚,二是对工作事业不利,工作事业上会出现较大差错,三是容易出现伤灾。
看到这两处关键点,我们就可以在心里面对此处住宅有个大致的印象。
然后再看户型,户型也是阳宅风水上一个比较重要的关键点,其实只从户型上就可以大致判断阳宅的好坏,(要注意只是可以大致判断,如果需要比较准确的判断,还要各种条件综合考虑)。为什么从户型上可以大致判断阳宅好坏,这是有一定风水依据的,只有玄空风水可以做到这一点,我已经在另一篇文章里详细讲解过。
我们来看这处住宅的户型平面图,只看一楼户型布局就行了,下图即是。

这个户型布局有前后两个门,后门进入花园,花园是封闭的。楼梯在中间,呈螺旋状。
这种户型布局整体来说,没有太大问题,只从户型格局上看,大概率经过风水设计,说明开发商还比较用心。此户型比较有利于财运,学业,工作事业。但结合外部环境及建成时间来分析,就会发现仍然会有感情婚姻及健康方面的问题。
所以我们在看阳宅时,注意到了关键点所在,很快就能得出此宅的大致情况。
2019-12-07
数字在我们生活中的使用越来越频繁,例如我们的电话号码,手机
2020-04-05
文昌符是我们民间用来加强孩子读书所用的,文昌符也就是向文昌帝
2019-12-08
23数字在易经预测体系里属于大吉之数, 23数暗示为:壮丽。
2019-10-06
童男、童女,在神界又分为端茶倒水、扫地浇花、牵牛牵马、贴身跟
2019-12-09
每个人的吉祥数字不同,个人喜好也不同,数字30冥冥中从来不畏
2025-04-05
搬家之中有许多的风俗讲究,那么公司搬家和我们日常的搬家有哪些
2025-04-05
人生命运不同,运势自然也不尽相同,有些人早年能发达,有些人中
2025-04-05
话说除了热爱整理、有收纳习惯的朋友,应该多得是习惯东西用了随
2025-04-05
色彩搭配在风水应用中也十分重要。黄色在风水学上具有旺财的功效
2025-04-05
如今的现代城市,高楼大厦鳞次栉比,房屋多是钢筋水泥的 “杰作
2022-03-01
首先在前面说了,所谓火烧天门,那么最为主要的就是火来克金这个
2020-06-25
,我们供奉佛菩萨,上香,礼拜,祈求好运,这只是我们信佛,学佛